Trilocale in vendita

Gatteo, Via giovanni XXIII
€ 235.000
3 locali 3 locali
90 Mq 90 Mq
1 bagno 1 bagno

Trilocale in vendita

Gatteo, Via giovanni XXIII

Descrizione annuncio

GATTEO

Proponiamo in vendita appartamento trilocale con ingresso indipendente, ideale per chi cerca autonomia, comfort e spazi ben organizzati.

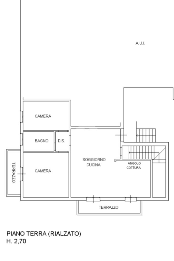
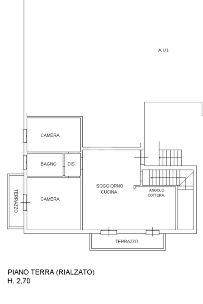
L’abitazione si sviluppa al piano rialzato e si apre su un’ampia e luminosa zona giorno open space, dove il soggiorno e la cucina convivono in un ambiente armonioso, mantenendo però una funzionale separazione degli spazi. La zona living affaccia direttamente sul terrazzo, garantendo luce naturale e uno sfogo esterno perfetto per i momenti di relax.

Un pratico disimpegno accompagna alla zona notte composta da camera matrimoniale con terrazzo, cameretta e bagno con box doccia.

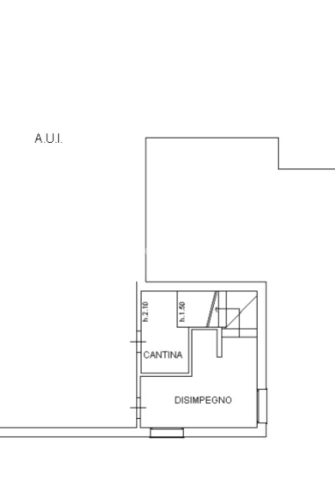
A completare la proprietà, al piano seminterrato collegato internamente da comoda scala, troviamo un garage di 27 mq, un ripostiglio e una lavanderia, spazi preziosi che rendono l’abitazione ancora più funzionale e completa.

L’immobile è dotato di infissi nuovi, stufa a pellet, aria condizionata e tetto recentemente rifatto; è stato rifatto sia l'impianto elettrico sia idraulico, caratteristiche che assicurano comfort abitativo ed efficienza energetica.

Una soluzione pronta da vivere, perfetta per famiglie o per chi desidera indipendenza e comodità in un contesto tranquillo.

Contattaci allo 0541.932794 o al 348.8876115 per maggiori informazioni o per organizzare una visita!
Mostra tutto

Nelle vicinanze

Trasporto pubblico Trasporto pubblico
Roma
Roma
210 m
Don Ghinelli
Don Ghinelli
270 m
Savignano
Savignano
2,1 Km
Scuole Scuole
Scuola Primaria "De Amicis"
130 m
Istituto Don Luigi Ghinelli
260 m
Scuole
330 m
Scuola Infanzia
2,1 Km
Dante Alighieri
2,2 Km
Farmacia Farmacia
Farmacia San Rocco
140 m
Salute e Benessere insieme
1,9 Km
Farmacia "Magnanelli"
2,4 Km
Parafarmacia San Mauro
2,4 Km
Farmacia
2,7 Km
Ospedali Ospedali
Ospedali
2,3 Km
Supermercati Supermercati
A&O
1,9 Km
Conad
2,0 Km
Supermercati
2,0 Km
Negozi Negozi
Negozi
100 m
Forno Pasticceria "F.lli Camilletti"
2,3 Km
Rosticceria
2,3 Km
Alimentari "Marcello" di Zani Enrico
2,3 Km
Merceria Puntaspilli
2,3 Km
Bar Bar
Bar
60 m
Bar Sport
2,0 Km
Gelateria "Pinguino"
2,2 Km
Bar/Pasticceria/Gelateria "Mimosa"
2,2 Km
Sidro Club
2,2 Km
Ristoranti Ristoranti
La vecchia officina
130 m
Arcobaleno
170 m
Ristoranti
670 m
Il Chioschetto
1,7 Km
Autogrill Rubicone Ovest
1,9 Km
Mostra tutto

Caratteristiche

Rif.:
61176104
Piano:
1 di 3 (Piano rialzato)
Box:
1
Posti auto:
1
Terrazzi:
2
Camere da letto:
2
Mostra tutto
Prezzo Prezzo
€ 235.000
Rata mutuo Rata mutuo
€ 1.116 / mese
Spese annue Spese annue
€ 80
Proponi il tuo prezzoProponi il tuo prezzo

Classe Energetica

Questo immobile è esente da classe energetica
Anno di costruzione:
1979
Riscaldamento:
Autonomo
Tipo impianto:
A radiatori
Tipo alimentazione:
Metano

Ti interessa visionare l'immobile?

Fissa un appuntamento  Fissa un appuntamento

Richiedi informazioni

Clicca su Leggi per aprire l'informativa
* Questi campi sono obbligatori

Calcola il tuo mutuo

Semplice e senza impegno
Anticipo

( % )
Mutuo

( % )

pochi semplici passi

inserisci i tuoi dati
Questionario completato
Grazie per aver richiesto un appuntamento senza impegno con un nostro Consulente del Credito e Assicurativo.

Hai inserito correttamente tutti i dati necessari e a breve riceverai una e-mail con un link da convalidare per inviare i tuoi dati.
Affiliato
Myricae Srl
Via G.Pascoli, 34/a 47030 San Mauro Pascoli (FC)

Il nostro staff


  • Massimo Pesaresi
    Affiliato

  • Davide Perazzini
    Affiliato

  • Matteo Conte
    Collaboratore

  • Sarah Pesaresi
    Affiliata

  • Enrico Zavalloni
    Collaboratore
Via G.Pascoli, 34/a 47030 San Mauro Pascoli (FC)
Zona: San Mauro Pascoli -Gatteo-Fiumicino-San Mauro Mare
Mostra su mappa
Orari: dal lun. al ven. 09.00/13.00 -15.00/19.30 il sab. 09.00/13.00
Affiliato
Myricae Srl
Via G.Pascoli, 34/a 47030 San Mauro Pascoli (FC)

2026 Tecnocasa Franchising S.p.A. - P. IVA 08365160152 - Via Monte Bianco 60/A 20089 Rozzano (MI). Ogni agenzia ha un proprio titolare ed è autonoma. Privacy policy | Policy utilizzo | Cookie policy